티스토리 뷰

목차
오랜만에 서울 개봉동에 호반 써밋 개봉 아파트를 분양합니다. 1호선 역세권으로써 가산디지털단지, 여의도, 영등포, 신도림 등 일자리가 많은 지역을 30분안에 출퇴근 할 수 있는 지역입니다.
최근에 분양한 인근의 광명 센트럴 아이파크가 84기준 13억 정도로 분양을 했습니다. 하지만 호반 써밋 개봉은 서울임에도 불구하고 저렴한 분양가로 분양을 실시하고 있습니다. 분양가는 59형 기준 76,000만원, 84기준 99,000만원 선입니다. 즉 인근 광명보다 3억이나 싸게 분양을 실시하고 있으니 내집 마련을 하고 싶은 분들은 꼭 한번 확인해보세요.



호반 써밋 개봉 위치 및 입지
위치 지도
아래 그림과 같이 지하철역에서 600미터 가량 떨어져 있습니다. 도보로 약 10분이 역세권 단지입니다
접근 도로도 상황이 좋아서 편리하게 지하철까지 이동 가능합니다.
초등학교 중학교 학군
오류초등학교가 340미터 인근에 있어 학부모님들이 좋아할 만한 위치입니다.
도보로 5~8분이면 도착하는 거리이고 다만 가는 길이 좀 오르막 내리막이긴 해서 겨울에는 조심해야 할 것 같습니다.

호반 써밋 개봉 분양 개요 및 주위 시세
호반 써밋 개봉 분양 일정

호반 써밋 개봉 분양 공고
아래 파일 받아보시면 됩니다. 카탈로그에는 호반 써밋 개봉에 관한 개략적인 사진과 내용이 있습니다.
다운로드해서 보시면 자세히 아실 수 있습니다.
호반 써밋 개봉 분양 개요 및 필요자금
주위 광명 센터럴 아이파크에 비해 84 기준 3억이나 싼 가격입니다. 제 생각에는 무조건 청약해야하는 가격입니다.
| 평형 | 분양가(최저~최고) | 
| 49 | 5억6380만원 ~ 5억9900만원 | 
| 59A | 6억8350만원 ~ 7억6610만원 | 
| 59B | 6억8810만원 ~ 7억7130만원 | 
| 84A | 9억3980만원 ~ 9억9860만원 | 
| 84B | 9억1560만원 ~ 9억9350만원 | 
| 84C | 9억2030만원 ~ 9억9860만원 | 
| 84P | 13억9000만원 | 
| 114P | 18억7500만원 | 
필요자금은 59기준 분양가에 2000만원 정도 추가되고 84의 경우는 3000만원 정도 추가되니
여유있게 준비하세요
분양아파트 주위 신축 시세
호반 써밋 개봉에서 남부순환도로 건너면 바로 앞에 있는 2014년에 준공하여 10년 정도 지난 개봉 푸르지오가 비교대상이 될것 같습니다.
59형을 비교해 볼까요? 현재 호가는 75,000만원부터 시작하고 실거래가는 대략 7억정도 되는것 같습니다.
요즘 아파트 가격이 약간 상승 한것을 생각하면 7.3억 정도가 시세라고 판단 가능합니다.
10년 정도 지났으니 인테리어를 다시해야하니 이것도 감안해야합니다.

84형 시세를 알아볼까요?
호가는 중층 기준으로 8억 후반입니다.
실거래가는 들쭉 날쭉하는데 시세도 8억 후반이라고 보는 것이 타당할 것입니다.

호반 써밋 개봉 청약 할까요 말까요?
위에서 알아본 것과 같이 10년이 지난 개봉푸르지오보다 약간 비싼 가격으로 분양가가 책정되었습니다
역과의 거리나 초등학교, 중학교 거리 모두 호반 써밋 개봉이 입지면에서 앞섭니다.
또한 최신축이라는 잇점이 있으니 준공 후 매매된다면 11억 이상의 시세를 형성 할 것으로 봅니다.
그렇다면 지금 청약을 하면 1억 정도의 이득이 있을 것이라고 생각됩니다.
1억정도 싸게 구매하고 싶다면 청약하는 것을 추천드립니다.
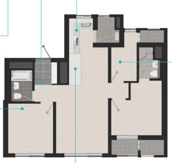
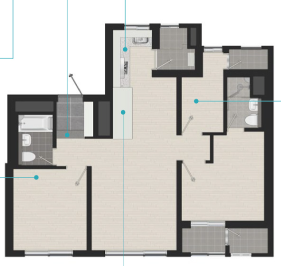
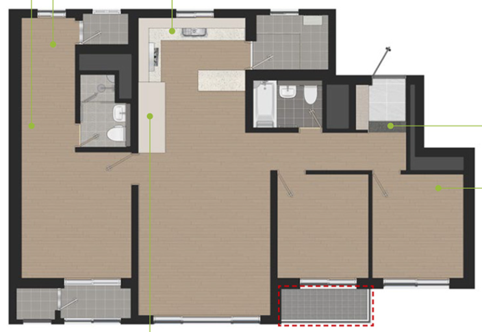
호반 써밋 개봉 평면도
59평면 왼쪽부터 59A 59B
59A : 전형적인 3베이 평면으로써 방 두개는 크게 뽑고 방한개는 드레스룸으로 쓸 수 있도록 설계했습니다.
요즘 서울 신축의 서비스 면적이 적어 방 사이즈가 작게 나오네요
59B : 타워형 구조의 평면으로 방 세개를 골고루 쓸 수 있도록 설계 되었네요


84평면 왼쪽부터 84A ~84C
84A : 요즘 유행하는 최신 4베이 평면입니다. 안방 드레스룸이 엄청 넓게 빠졌네요 작은 방두개는 사이즈가 좀 작은게 참 아쉽네요. 맞통풍에 유리한 판상형입니다.
84B/ 84C : 타워형으로 방 3개의 사이즈를 골고루 분배 했습니다. 요즘은 타워형이라도 통풍도 잘되고 쓰임새가 좋아 젊은 사람들에게 인기가 있습니다.



호반 써밋 개봉 평가
부동산 카페의 여론은 광명도 13억에 팔리는데 서울 끝자락이라도 서울을 서울이다는 평가입니다.
그런데 10억 안되는 가격에 분양가가 책정되었으니 당연히 완판된다는 분위기 입니다.
저도 동조하는 바입니다.

호반 써밋 개봉 시설






호반 써밋 개봉 총평
서울 역세권에 신축이 84(34평) 기준 10억에 분양하고 있습니다. 신축답게 커뮤니티 시설 및 여러가지 부대 시설이 잘 갖추어져 있는 신축아파트 입니다. 누구나 신축에 살고 싶어하는 지금 청약에 도전해 보세요. 주위 시세보다 1억 싸게 구매하는 방법이고 추후 시세 차익을 보고 매매도 할수 있는 일석이조의 아파트 단지입니다.
'부동산' 카테고리의 다른 글
| 수원 전세사기 수법 및 전세사기 예방 방법 (0) | 2023.10.10 | 
|---|---|
| 철산자이 브리에르 분양가 아파트 입지 평면도 청약 전략 완전 분석 (0) | 2023.10.07 | 
| 상도 푸르지오 클라베뉴 아파트 분양가, 입지, 필요 자금, 평면도, 청약 할까요, 아파트 평가 (0) | 2023.08.24 | 
| 전세 사기 피하는 법 대책 예방 수법 유형 100% 피하는 방법 깡통전세 피해자 안되는 방법 (0) | 2023.08.22 | 
| 전세 사기 100% 방지를 위한 인터넷 등기소에서 근저당 설정 상황 확인하기 (0) | 2023.08.22 | 
